Skip To Content

2040 Freestone Way

Marietta, GA 30064
  • $894,000
  • STATUS: Active
  • ON SITE: 13 Days
  • MLS #: 10662413
UPDATED: 43 min ago
$894,000
  • 5
    BEDS
  • 0.24
    ACRES
  • 4
    BATHS
  • 0
    1/2 BATHS
Neighborhood:
Type:
Single-Family Home
Built:
2026
County:
Area:

School Information

Elementary School:
Middle School:
High School:

Description

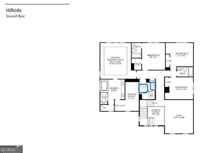
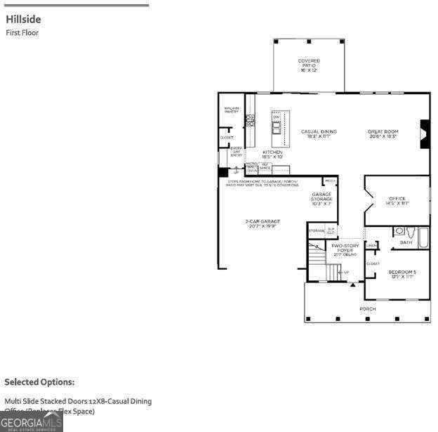
Toll Brothers at FREESTONE STATION.....HILLSIDE PLAN UNDER CONSTRUCTION AND READY SUMMER '26! Our most popular floorplan AND THE LAST ONE TO BE BUILT IN THE NEIGHBORHOOD, the Hillside, is located in Freestone Station, a community of 100 homes with convenient access to shopping, dining, and top-rated Cobb County schools. The chef's kitchen features quartz countertops, KitchenAid appliances with double oven, and a large island, with TRIPLE SLIDING DOORS opening to a covered patio overlooking your private yard. The great room and flex space offer a spacious, open layout beaming with possibilities- need an office or a space for your grand piano? We've got you covered! Upstairs welcomes you with a large loft as you head down the hallway to the bedrooms. The primary bath boasts a large shower and soaking tub. Upstairs laundry includes a sink and quick access from the large primary closet. The garage offers ample space with a CAR CHARGING OUTLET. Amenities include a pool, cabana, play area, pocket park, and sidewalks throughout the community. Just minutes from Marietta Square, the Avenue of West Cobb, and the Battery, with easy access to the airport. Toll Brothers has been trusted since 1967 to offer the best in luxury home building. For 10 Years Toll Brothers has been ranked #1 Builder Worldwide on FORTUNE Magazine's "World's Most Admired Companies" list. With just 5 opportunities left to own in Freestone Station, don't miss your chance! Stop by today!

Monthly Payment Calculator



Georgia MLS logo© 2026 Georgia Multiple Listing Service, Inc. All rights reserved. The data relating to real estate for sale or lease on this web site comes in part from GAMLS. Real estate listings held by brokerage firms other than Buffington Real Estate Group are marked with the GAMLS logo or an abbreviated logo and detailed information about them includes the name of the listing broker. IDX information is provided exclusively for consumers' personal, non-commercial use and may not be used for any purpose other than to identify prospective properties consumers may be interested in purchasing. Information is deemed reliable but is not guaranteed accurate by GAMLS or Buffington Real Estate Group. Data last updated: 2026-01-12T11:10:04.6.
www.chadbuffington.net/homes/171612232
Print Image

2040 Freestone Way Marietta, GA 30064

  • Price: $894,000
  • Status: Active
  • On Site: 13 Days
  • Updated: 43 min ago
  • MLS #: 10662413
5
Beds
4
Baths
0
½ Baths
0.24
Acres
2026
Built
Neighborhood:
Freestone Station
County:
Cobb
Area:
Marietta
Elementary School:
Dowell
Middle School:
Lovinggood
High School:
Hillgrove
Property Description
Toll Brothers at FREESTONE STATION.....HILLSIDE PLAN UNDER CONSTRUCTION AND READY SUMMER '26! Our most popular floorplan AND THE LAST ONE TO BE BUILT IN THE NEIGHBORHOOD, the Hillside, is located in Freestone Station, a community of 100 homes with convenient access to shopping, dining, and top-rated Cobb County schools. The chef's kitchen features quartz countertops, KitchenAid appliances with double oven, and a large island, with TRIPLE SLIDING DOORS opening to a covered patio overlooking your private yard. The great room and flex space offer a spacious, open layout beaming with possibilities- need an office or a space for your grand piano? We've got you covered! Upstairs welcomes you with a large loft as you head down the hallway to the bedrooms. The primary bath boasts a large shower and soaking tub. Upstairs laundry includes a sink and quick access from the large primary closet. The garage offers ample space with a CAR CHARGING OUTLET. Amenities include a pool, cabana, play area, pocket park, and sidewalks throughout the community. Just minutes from Marietta Square, the Avenue of West Cobb, and the Battery, with easy access to the airport. Toll Brothers has been trusted since 1967 to offer the best in luxury home building. For 10 Years Toll Brothers has been ranked #1 Builder Worldwide on FORTUNE Magazine's "World's Most Admired Companies" list. With just 5 opportunities left to own in Freestone Station, don't miss your chance! Stop by today!
Exterior Features

Architectural Style Traditional Attached Garage YN No Carport YN No Common Walls No Common Walls Construction Materials BrickOther Foundation Details Slab Garage YN Yes Levels Two Lot Features Private Lot Size Area 10454.4 Lot Size Source Owner Lot Size Units Square Feet Parking Features GarageKitchen LevelGarage Door Opener Parking Total 2 Patio And Porch Features Patio Roof Composition Total Number Of Slips 0 View YN No Window Features Double Pane Windows

Interior Features

Above Grade Finished Area 0 Above Grade Finished Area Units Square Feet Appliances DishwasherDisposalDouble OvenMicrowaveTankless Water Heater Basement None Below Grade Finished Area 0 Below Grade Finished Area Units Square Feet Below Grade Unfinished Area 0 Building Area Total 0 Building Area Units Square Feet Cooling Ceiling Fan(s)Central Air Cooling YN Yes Fireplace Features Gas Starter Fireplace YN Yes Fireplaces Total 1 Flooring CarpetHardwoodTile Heating Central Heating YN Yes Interior Features Double VanityHigh CeilingsTray Ceiling(s)Walk-In Closet(s) Kitchen Features Kitchen IslandSolid Surface CountersWalk-in Pantry Laundry Features Upper Level Living Area Source Builder Living Area Units Square Feet Main Level Bathrooms 1 Main Level Bedrooms 1 Rooms LaundryLoftOffice

Property Features

Association Fee 1000 Association Fee Includes Management FeeReserve FundSwimming Association YN Yes Community Features ParkPlaygroundPoolSidewalksWalk To SchoolsNear Shopping District 19TH Electric 220 Volts Electric On Property YN Yes Es Bus Yn Yes Green Energy Efficient ThermostatWater Heater Home Warranty YN Yes Hs Bus Yn Yes Land Lease YN No Land Lot 475 Listing Terms 1031 ExchangeCashConventionalVA Loan Ms Bus Yn Yes New Construction YN Yes Property Attached YN No Property Condition New Construction Property Sub Type Single Family Residence Section 2ND Security Features Smoke Detector(s) Sewer Public Sewer Structure Type House Tax Annual Amount 0 Tax Year 0 Utilities Cable AvailableElectricity AvailableNatural Gas AvailablePhone AvailableSewer AvailableUnderground UtilitiesWater Available Water Body Name None Water Source Public

GAMLS logo Listing provided courtesy of Toll Brothers Real Estate Inc.: 470-266-3773. © 2026 Georgia Multiple Listing Service, Inc. All rights reserved. Information Deemed Reliable But Not Guaranteed.


Georgia MLS logo© 2026 Georgia Multiple Listing Service, Inc. All rights reserved. The data relating to real estate for sale or lease on this web site comes in part from GAMLS. Real estate listings held by brokerage firms other than Buffington Real Estate Group are marked with the GAMLS logo or an abbreviated logo and detailed information about them includes the name of the listing broker. IDX information is provided exclusively for consumers' personal, non-commercial use and may not be used for any purpose other than to identify prospective properties consumers may be interested in purchasing. Information is deemed reliable but is not guaranteed accurate by GAMLS or Buffington Real Estate Group. Data last updated: 2026-01-12T11:10:04.6.
 
https://bt-photos.global.ssl.fastly.net/gamls/orig_boomver_1_10662413-2.jpg https://bt-photos.global.ssl.fastly.net/gamls/orig_boomver_1_10662413-2.jpg https://bt-photos.global.ssl.fastly.net/gamls/orig_boomver_1_10662413-2.jpg
Logo
Buffington Real Estate Group
3395 White Sulphur Road
Gainesville GA, 30501